Herderfactory

Nieuw initiatief: Culturele vrijplaats Karper K

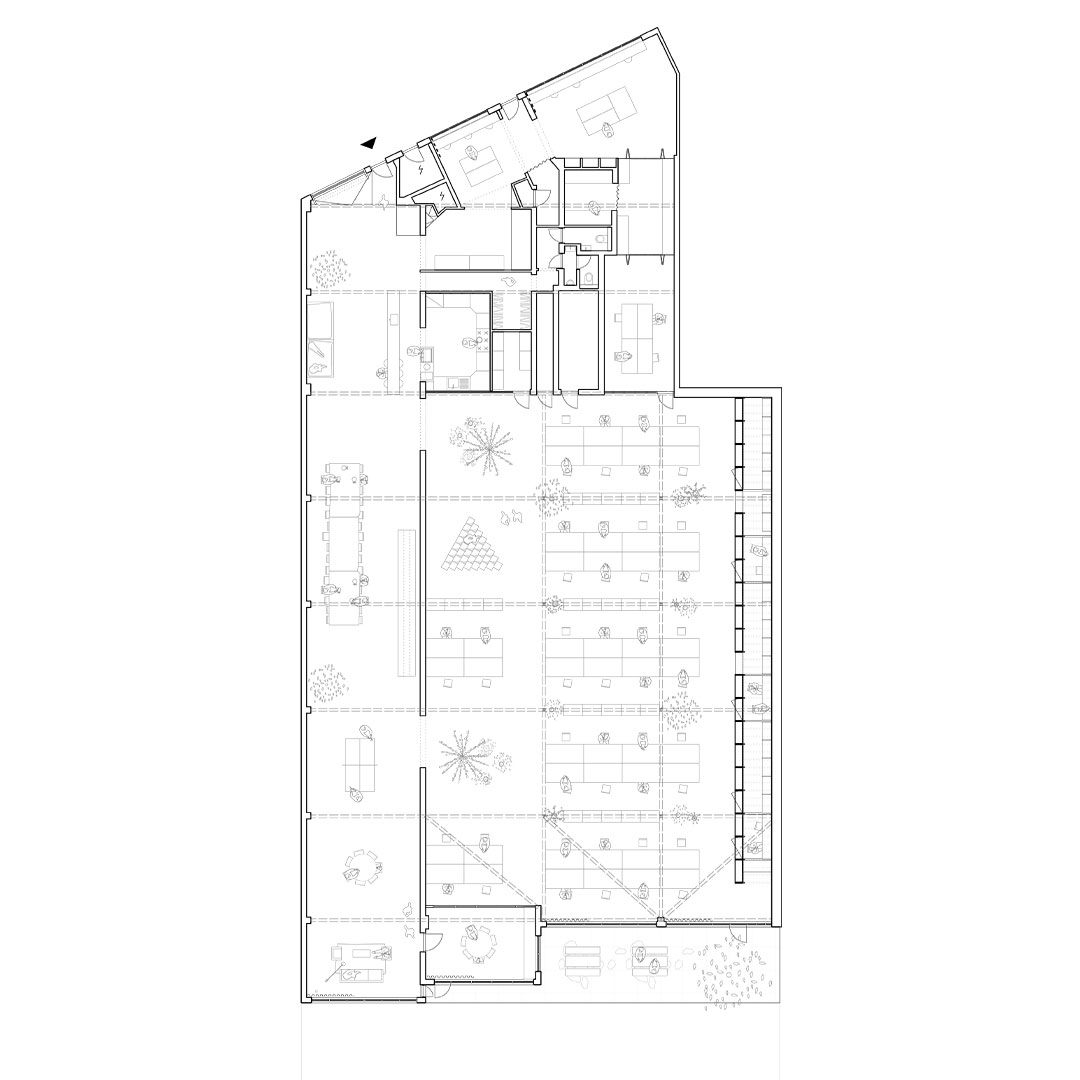
Sinds begin 2022 waren wij op zoek naar een nieuwe locatie ter vervanging van onze tijdelijke werkplek Creative Workspace 1-1-1 in Amsterdam Noord. Aan de Karperweg in Amsterdam Zuid vonden we een pakhuis – anoniem en verouderd, maar met een verrassende, rauwe kwaliteit en aan een van de laatste rafelranden van de stad. We transformeerden het gebouw en verhuisden met acht andere creatieve kantoren van onze vorige werkplek naar de nieuwe ruimte.

Geselecteerde verhalen

Architectenweb
Divisare
Archdaily
Archined
De Architect

Free Space

De hal langs onze werkruimtes noemden we Free Space: een uitgestrekte ruimte die volledig open is in vorm, functie en gebruikstijd. Het karakter van de ruimte stelt het in staat om een verscheidenheid aan culturele evenementen en tentoonstellingen, materiaaltests en nachtelijke evenementen te stimuleren. Aan de straatkant ligt de makerspace, die door de hoge ramen fungeert als de fysieke etalage van Karper K. We wilden de rauwheid van de oorspronkelijke site behouden en een sprankelende sfeer creëren die de creativiteit binnenin stimuleert. Overdag werken alle verschillende bedrijven zij aan zij in de luchtige ruimte aan de oostzijde van het pand. Om de bestaande samenwerkingen en uitwisselingen tussen de bedrijven te maximaliseren, werd de werkruimte transperant en consistent ontworpen. Door de sheddaken wordt het gehele vloeroppervlak overdag overspoeld met indirect natuurlijk licht. Met PV-panelen op het dak, twee luchtwarmtepompsystemen en vloerverwarming en -koeling wordt het gebouw duurzaam herontwikkeld.

Zachtgrijs

Om de eenheid van Karper K. en zijn gebruikers te benadrukken en een ruimte te creëren die continue functionele overgang mogelijk maakt, werden de wanden, kasten en zelfs relikwieën afgewerkt in één uniforme, zachtgrijze kleur. Een centraal element is de doorlopende kast aan de zijkant van de werkruimte, die ruimte biedt voor fysieke monsters, modellen en intieme ontmoetingsplekken. Kleurrijke meubels en zitelementen versterken de identiteit van de plek.

Een nieuwe culturele vrijplaats voor Amsterdam

Amsterdam wordt steeds schaarser op veilige plekken waar ideeën zich kunnen ontvouwen. In ons streven om nieuwe gemeenschappen met collectieve impact te vormen, openen we met Karper K. een nieuwe plek voor uitwisseling en experiment in de stad, die voortdurend in beweging blijft. Karper K. is meer dan alleen onze collectieve thuisbasis: we presenteren een plek voor onverwachte en onvoorspelbare combinaties, een vrije ruimte in de stad die elke maker een veilige omgeving biedt om ideeën te ontwikkelen. Op de afbeelding is een interactieve lichtinstallatie te zien, ontwikkeld in samenwerking met Synthetic State. Wees Welkom!

Project details

Design

Studioninedots met Albert Herder

Type

1000m2 Multifunctional Space / Creative Workspace

Location

Karper K, Karperweg 41, Amsterdam, NL

Design-Completion

2022 - ongoing

Partners

Studioninedots
INAT kantine
Lesley Moore
FRONT-materials
Absent Matter Visualisation
Pretty Plastic
Studio KU+
Atelier Bouwkunde
Studio Pinar Balat
Sean van den Steenhoven
Contour IDS

Licht installatie

Synthetic State

Image credits

Sebastian van Damme

tentoonstelling-island-daniel-nicolas-karper-k-studioninedotswisselspoor-blauwe-kamer-jaarboek-cityplot-studioninedotswerkstad-overamsteljaarboek-architectuur-in-nederland-2020-2023-studioninedotsbaanhof-rotterdam-ggd-cluster-baankwartier-studioninedotspapaverwerf-europan-buiksloterham-amsterdam-studioninedotswisselspoor-deelgebied-utrecht-cityplot-studioninedotsbestemmingsplan-schieoevers-noord-delft-supervisor-herderfactoryrebel-kop-zuidas-amsterdam-studioninedotswandervoids-studioninedotssymposium-principes-maakstad-schieoevers-noord-delft-herderfactorybovenbouwwerkplaats-wisselspoor-cityplot-utrecht-studioninedotslezing-het-gastvrije-station-nijmegen-lux-studioninedotsblack-swan-kauwgomballenfabriek-overamstel-studioninedotsnext-step-award-2022-bna-synchroon-juryvoorzitter-herderfactorycityplot-bsh-genomineerd-gulden-fenikscityplot-buiksloterham-gulden-feniks-amsterdam-studioninedotsbeelden-pompenburg-rotterdam-studioninedotspark-mozaik-cityzen-brussel-studioninedotslecture-aorta-city-of-tomorrow-utrecht-wisselspoor-studioninedotslezing-air-pompenburg-rotterdam-studioninedotsinterview-fotosessie-pompenburg-rotterdam-studioninedotsschieoevers-noord-delft-kwaliteitsteam-supervisor-herderfactorysmakkelaarspark-utrecht-studioninedotsinterview-cobercokwartier-arnhem-cityplot-nieuwekadekwartier-studioninedotswestbeat-studioninedots-amsterdamgroene-architectuurgids-arcam-amsterdam-studioninedotsschieoevers-noord-safari-delft-herderfactoryde-caai-eindhoven-studioninedotsbogen-borrel-westbeat-amsterdam-lingotto-studioninedotsmodulaire-bouw-industrieel-flexibel-demontabel-ifd-prefabfifty-fifty-westbeat-nominatie-bna-award-studioninedotswet-beast-studioninedots-amsterdamcityplot-concept-studioninedotsmeet-our-associates-partners-studioninedotscobercokwartier-nieuwekadekwartier-cityplot-arnhem-studioninedotsinterview-plan-amsterdam-cityplot-buiksloterham-studioninedotscobercokwartier-nieuwekadekwartier-circulair-studioninedotswestbeat-nominatie-zuiderkerkprijs-studioninedotscampina-de-caai-start-bouw-cityplot-eindhoven-studioninedotsreactie-welstand-wisselspoor-utrecht-cityplot-studioninedotspeaky-blinders-party-studioninedotsstudiereis-brooklyn-2018-herderfactorydenemarkenstudiereis-bordeaux-2019-herderfactorystudiereis-barcelona-2020-herderfactorystudiereis-italy-2022-herderfactorystudiereis-cote-d-azur-2022-herderfactorystudiereis-lyon-arles-nancy-2021-herderfactorystudiereis-hamburg-2020-herderfactorystudiereis-paris-2019-herderfactorystudiereis-valencia-2019-herderfactorystudiereis-oslo-waterfront-2019-herderfactorynieuwe-huisstijl-herderfactorystudiereis-zurich-graubunden-2020-herderfactorycreative-workspace-111-stork-amsterdam-noord-studioninedotsculturele-vrijplaats-karper-k-verbouwing-amsterdam-studioninedotsculturele-vrijplaats-karper-k-initiatief-amsterdam-studioninedotsculturele-vrijplaats-karper-k-tafel-van-arcam-amsterdam-studioninedots230508-wisselspoor-nominatie-neprom-prijscityplot-buiksloterham-amsterdam-studioninedots360-degrees-buiksloterham-cityplot-amsterdam-studioninedotslancering-wespace-onderzoek-studioninedotsintersphere-studioninedots-onderzoekhighnote-almere251203-smakkelaarsveld-wordt-sparkbestemmingsplan-vastgesteld-pomp260323-werkstad-meets-overamstelnieuwe-stap-goodbye-hello